Уважаемые клиенты, 30.12.2025 мы работаем до 16:00, в период с 31.12.2025 по 10.01.2026 наш магазин принимает заказы только онлайн.
Пн - Пт с 9.00 до 18.00
8 800 777 34 79 8 495 268 12 24
Пн - Пт с 9.00 до 18.00
Уважаемые клиенты, 30.12.2025 мы работаем до 16:00, в период с 31.12.2025 по 10.01.2026 наш магазин принимает заказы только онлайн.

Подвесной унитаз с инсталляцией WeltWasser Amberg 350 ST / Salzbach 043 GL-BL / Amberg RD-CR 10000013458 черный глянцевый

Модель: 10000013458
Код товара: 239688
Производитель: WeltWasser
Коллекция: Salzbach
Страна: Германия
Выбор размера:
Форма товара: Округлая
Безободковый: Да
Управление инсталляцией: Механическое
Область применения: Бытовая
С антивсплеском: Да
Стилистика дизайна: Современная
Материал: Фаянс
Вес: 43.5кг
  • Под заказ
  • Цена:
    45200 руб.30959 руб.
  • Действует акция, подробности по телефону
  • • Москва - 500 руб.
  • • За МКАД - 40 руб./км.
  • • В течение 2-х рабочих дней
  • • На расчетный счет
  • • Курьеру наличными

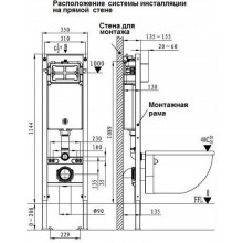
Инсталляция WeltWasser Amberg 350 ST для унитаза.

  • Материал: нержавеющая сталь, пластик.
  • Размеры инсталляции (ШхВхГ): 350х1144х215 мм.
  • Пластиковый бачок слива в пенопласте для бесшумного слива воды.
  • Усиленная рама. Бесшовная внутренняя сварка рамы.
  • Регулируемая глубина до 35 мм.
  • Усиленные регулируемые ножки от 0 до 200 мм.
  • Крепление ножек к полу возможен в 4х вариантах.
  • Уплотнитель между плиткой и унитазом.
  • Подвод воды: сверху и сзади.
  • Межосевое расстояние под крепеж унитаза 180 и 230 мм.
  • Диаметр слива: 90/110 мм.
  • Установка: в капитальную стену и в пол, а также в угол.
  • Дополнительный крепеж посередине рамы.
  • Двойная шумоизоляция.
  • Нагрузка до 410 кг.

Клавиша смыва WeltWasser WW Amberg RD-CR подходит ко всей серии Amberg. Красота и современный дизайн добавят стиля при установке инсталляций.

  • Материал: ABS-пластик.
  • Режим слива воды: две кнопки.

Унитаз WeltWasser Salzbach 043 GL-BL подвесной.

  • Материал: санфаянс.
  • Размеры (ШхВхД): 355x365x515 мм.
  • Система антивсплеск.
  • Антигрязевое покрытие.
  • Антибактериальное покрытие (технология PureGuard) препятствует размножению бактерий.
  • Водоотталкивающее покрытие.
  • Безободковая конструкция (обеспечивает высочайший уровень гигиены и удобство в уборке из-за отсутствия труднодоступных мест).
  • Организация смывающего потока: система смыва Tornado (струя воды из отверстия в чаше создает эффект водоворота, что позволяет полностью очищать всю внутреннюю поверхность унитаза).
  • Ультра-тихая система смыва.
  • Направление выпуска: горизонтальное (в стену).
  • Сиденье из дюропласта с плавным опусканием крышки (микролифт), быстросъемное.
  • Монтаж: подвесной.

Отзывы (0)

Оценка покупателей
Нет отзывов об этом товаре.

Оставить свой отзыв